От автора «Убийств в десятиугольном доме», книги из ТОП-10 лучших японских детективов всех времен, спровоцировавшей мировой бум хонкаку-детективов.
Современная интеллектуальная игра со стандартами классического детектива.
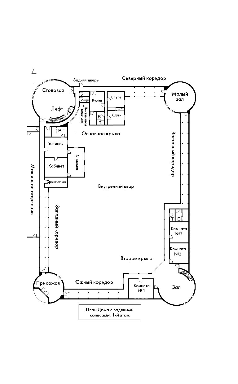
Гениальный архитектор Сэйдзи Накамура всю жизнь сооружал только странные дома с секретами. Один из них — Дом с водяными колесами, построенный посреди гор, где нормальный человек жить и не подумал бы. Странный хозяин особняка прикован к инвалидной коляске и всегда носит белую маску и белые перчатки. Здесь он хранит коллекцию работ своего отца, великого художника Иссэя Фудзинумы по прозвищу Провидец.
Лишь раз в год горстке избранных разрешается посетить особняк и насладиться полотнами. И в один из таких дней происходит жестокое и непонятное убийство домработницы — она сброшена с балкона прямо на вращающиеся водяные колеса. А затем случаются еще более безумные вещи — один из гостей буквально испарился из помещения, откуда нельзя уйти незамеченным, а второй убит, расчленен и сожжен. Мнение полиции однозначно: исчезнувший и есть убийца.
Ровно год спустя остатки той же компании возвращаются в особняк. Есть среди них и новое лицо — сыщик Киёси Симада. Он хочет доказать, что его друг, объявленный убийцей, на самом деле невиновен и настоящий преступник находится среди собравшихся. Однако Дом с водяными колесами приготовил новые жуткие сюрпризы…
_____________________________________________________________
«Конец забвению хонкаку я пытался положить собственными скромными усилиями, романами "Токийский Зодиак" (1981) и "Дом кривых стен" (1982). Лед слегка тронулся, но, к сожалению, не сразу получилось обрести достойных последователей в этом деле. И вот в 1987 году писатель-детективщик, которого я так ждал, явился. Я сразу почувствовал важность творчества Аяцудзи, поэтому всеми силами поддержал его дебют». — Содзи Симада, гений современного хонкаку
Для покупки товара в нашем интернет-магазине выберите понравившийся товар и добавьте его в корзину. Далее перейдите в Корзину и нажмите на «Оформить заказ» или «Быстрый заказ».
Когда оформляете быстрый заказ, напишите ФИО, телефон и e-mail. Вам перезвонит менеджер и уточнит условия заказа. По результатам разговора вам придет подтверждение оформления товара на почту или через СМС. Теперь останется только ждать доставки и радоваться новой покупке.
Оформление заказа в стандартном режиме выглядит следующим образом. Заполняете полностью форму по последовательным этапам: адрес, способ доставки, оплаты, данные о себе. Советуем в комментарии к заказу написать информацию, которая поможет курьеру вас найти. Нажмите кнопку «Оформить заказ».
Оплачивайте покупки удобным способом. В интернет-магазине доступно 3 варианта оплаты:
- Платежными картами Visa, MasterCard, American Express на сайте. Вы можете оплатить с помощью платёжной карты любого банка Казахстана систем Visa, MasterCard и American Express. Оплата производится через систему авторизации платежных карт Processing.kz АО «Сбербанк».
- Оплата наличными курьеру при получении товара. Вы можете оплатить заказ наличными или оплатить картой курьеру при получении.
- Банковским переводом. Этот способ оплаты, доступен для юридических лиц и индивидуальных предпринимателей. Производится безналичным переводом по реквизитам, указанным в выставляемом счете. Деньги на счёт зачисляются в течение 1-2 рабочих дней при оплате через АО «Сбербанк», и до 3 дней через другие банки.
- Самовывоз . Пункт самовывоза находиться в г. Алматы, по адресу Домбровского 3 "А", офис 1 (Заказ предварительно оформить на сайте). Работает по БУДНЯМ с 09:00 до 17:30 , пожалуйста позвоните нам за 20 мин и сообщите о своем приезде.
- Доставка в ближайшее отделение Казпочты. Для получения товара Вам нужно будет обратиться в назначенное отделение после смс-сообщения о прибытии товара. При себе нужно иметь удостоверение личности и знать трек-номер.
- Почтоматы Казпочты. Отправка заказов только по 100 % предоплате.
